52 Ohukai Rd in Wai Wai Paa - $1,495,000
$1,495,000
52 Ohukai Rd in Wai Wai Paa
Main House
- Beds : 4
- Bath : 4
- Garage : 0 Cars
- Living Area : 2,444 SqFt
- Pool : Yes
- Land Area : 0.17 Acres
- Zoning : 3
Ohana
- Beds : 1
- Bath : 1
- Living Area : 500 SqFt
- MLS #: 409295
- Status : PENDING - CONT. TO SHOW
- Potential Short Sale : No
- REO Property :
- List Date : 04/14/2026
- Days on Market : 47
- Link to this property
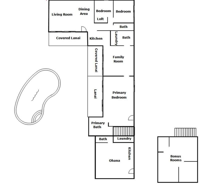
Premier North Kihei Multi-Unit Investment Opportunity. Located in the highly desirable North Kihei corridor, this high-yield property at 52 Ohukai Rd offers a rare combination of immediate cash flow and prime beachside proximity. Just a three-minute walk from the golden sands of Mai Poina Beach Park, this 7,505 sq. ft. lot is zoned R2, supporting its current high-density configuration. The property is an investor’s dream, currently generating $7,300 in monthly rental income. With the owner currently residing in a one-bedroom, one-bathroom unit that adds $2,000 in rental potential, the total projected gross income reaches $9,300 per month. The infrastructure is purposefully designed for multi-unit success, featuring two electric meters and two dedicated laundry rooms to streamline utility management. The residence includes a spacious 4-bedroom main house with a built-in swimming pool and a private yard with mature fruit trees, as well as an Ohana with a full kitchen, all within a 3-minute walk to the beach. The home is strategically insulated and features large sliding doors, positioned to capture North Kihei’s consistent cross-breezes for year-round natural cooling. (Several photos have been virtually staged to provide spatial awareness.)
This property is listed by:
.
Listing data provided by:
The Maui Multiple Listing Service
52 Ohukai Kihei
Drag the orange figure on top of the map marker to activate street view.

