Villas at Kenolio I #13A in Kihei - $630,000
$630,000
Villas at Kenolio I #13A in Kihei
Main House
- Beds : 2
- Bath : 2
- Garage : Cars
- Living Area : 960 SqFt
- Pool : Yes
- Land Area : 8.75 Acres
- Zoning : 3
Ohana
- Beds : 3
- Bath :
- Living Area : 0 SqFt
- MLS #: 408270
- Status : ACTIVE
- Potential Short Sale : No
- REO Property :
- List Date : 12/31/2025
- Days on Market : 103
- Link to this property
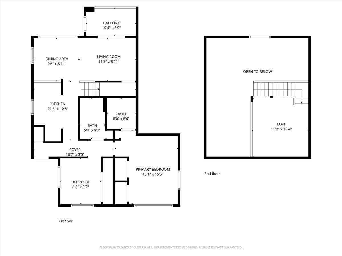
Welcome to 13A at Villas at Kenolio--an inviting upstairs corner unit in one of North Kihei's most convenient communities. The home has two good sized bedrooms, two full baths, a spacious loft, and a covered lanai. The home has vaulted ceilings, extra windows, three AC units, an eco-friendly solar water heater, tons of storage space, closet organizers and high end appliances. The property comes with two parking stalls in front of the unit for easy access and it is a pet friendly community. The Villas at Kenolio development feels more like a small neighborhood versus a condo complex. Great amenities such as a large swimming pool, hot tub, gym, playground, and wide grassy spaces for recreation. Located minutes from white sandy beaches, this home offers cool ocean breezes throughout the day. If you are familiar with the area, then you already know--this is one of the hidden gems of Kihei. With a coffee spots, local bakeries, and a beach club eatery nearby for sunset food and drinks on the sand, this is a spot you do not want to miss! The nearby stretch of white sandy beach is famous for windsurfing, kite surfing, canoeing, stand up paddle boarding or just a great beach to bask in the sun. Easy to show- ready to move in!
This property is listed by:
.
Listing data provided by:
The Maui Multiple Listing Service
Villas at Kenolio I # 13A - Kihei
Drag the orange figure on top of the map marker to activate street view.

